
-
转斗式提升机
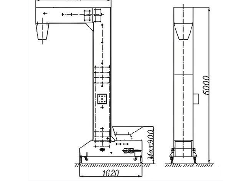
描述:转斗式提升机介绍 转斗式提升机的工作原理是将物料通过悬挂在链条上的料斗输送到密闭的壳体中。其主要形式有Z型、C型和水平型。其工作原理和特点是相同的。它用于水平、垂直和
咨询电话:0373-2682 333
转斗式提升机介绍
转斗式提升机的工作原理是将物料通过悬挂在链条上的料斗输送到密闭的壳体中。其主要形式有Z型、C型和水平型。其工作原理和特点是相同的。它用于水平、垂直和水平运输粉末、颗粒和小块材料。具有结构紧凑、占地面积小、起升高度大、密封性能好、不损伤材料等优点。这台机器的负载便于维修。
转斗式提升机适用范围
斗式提升机和斗式提升机广泛应用于各种需要软装卸的环境中。Z型升降进给、C型升降进给、Z-C混合进给和多点进给、多点切割等场合。目前主要用于称重包装机的装卸、色选机的装卸和检查进料、自动化生产线的三维循环装卸。
转斗式提升机广泛应用于
宠物食品工业、膨化食品工业、饲料工业、糖果工业、干鲜水果工业、保健食品工业、粮食加工业、化工医药工业、五金电器材料工业、军工制造业,等设备的主机架可根据不同的使用需要选用碳钢喷塑、304不锈钢、316L不锈钢等材料。漏斗材料包括改性塑料漏斗、碳钢漏斗和不锈钢漏斗。
转斗式提升机工作原理
是在封闭的壳体内,通过悬挂在链条上的料斗进行物料的输送。其主要组成形式有Z字型、C字型,一字水平型。其工作原理及特点相同,用于水平—垂直—水平输送粉状、颗粒状及小块状物料。

转斗式提升机产品用途
斗式提升机、转斗式提升机广泛应用于各种需要柔和处理的环境,提升物料通过振动给料机缓冲以后均匀的投入提升料斗后机器自动连续运转向上运送。根据传送量可调节传送速度,并随需选择提升高度。
转斗式提升机优势特点
其结构紧凑、占地面积小、提升高度大、密封性能好、物料无破损。本机载荷大、便于保养。
转斗式提升机结构原理
转斗式诱导提升机按照进料、出料口的位置不同分为Z型斗式提升机、C型斗式提升机;按照出料口的数量不同分为:单点出料斗式提升机和多点出料斗式提升机,出料点可自由设定,由设备自动完成落料控制。
联系方式
销售(售后)热线:0373-2682 333
手机 1583618876(李经理)
邮箱:cndahan@163.com
地 址:河南省新乡市延津县森林公园大门西1000米路北
豫ICP备09002479号-48




